Hochwertige Doppelhaushälften mit traumhaftem Ausblick im Neubaugebiet Groß-Tarup
Flensburg | Doppelhaushäfte | 130m² | 5 ZimmerIn dem beliebten Flensburger Neubaugebiet „Groß-Tarup“ befinden sich diese modernen und stilvollen Doppelhaushälften in traumhafter Lage mit unverbautem Ausblick auf das Regenrückhaltebecken.
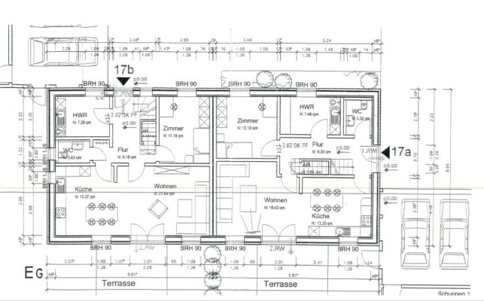
Die Wohnfläche beträgt ca. 130 m² und erstreckt sich über zwei Ebenen. Im Erdgeschoss befindet sich der offene Wohn/Essbereich mit Zugang zur Terrasse sowie ein Gästezimmer/Büro. Außerdem befinden sich im Erdgeschoss ein Hauswirtschaftsraum und ein Gäste-WC.
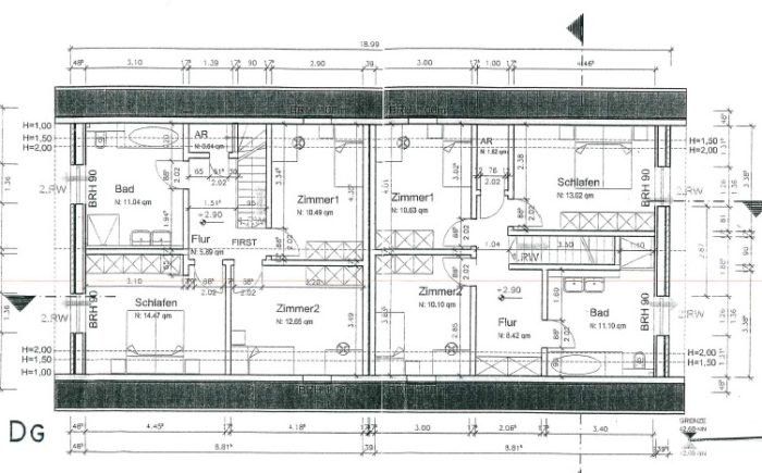
Im Obergeschoss befinden sich 3 weitere Zimmer und das Vollbad mit Dusche und Badewanne. Über eine Holztreppe gelangt man in das ausgebaute Dachgeschoss/Studio.
Zum Haus gehört eine Terrasse, welche in Richtung Süd/West ausgerichtet ist sowie ein hochwertiges Carport mit Schuppen, welcher über ausreichend Staumöglichkeiten verfügt. Die Auffahrt zum Haus ist gepflastert.
Durch die hervorragenden Wärmedämmung hat das Haus einen geringen Energieverbrauch. Die Heiz- und Nebenkosten werden direkt zwischen den Versorgern und dem Mieter abgerechnet.
Aufteilung EG
- Flur
- Küche
- Wohn/Essbereich
- Gästezimmer/Büro
- HWR
- Abstellraum unter der Treppe
- Gäste-WC
Obergeschoss
- 2 Kinderzimmer
- Schlafzimmer
- Flur
- Abstellraum
- Vollbad
Dachgeschoss:
- Studio
Ausstattung
Gehobene Ausstattung die keine Wünsche offen lässt:
- Verblendfassade, Mauerziegel, Farbe blaubraun
- Fenster: 3-fach Isolierverglasung (Dreh-. Kippkonstruktion)
- Heizung und Warmwasser über Fernwärme-Zentralheizung
- Geringer Energieverbrauch durch gute Wärmedämmung
- Edle Massivhaustüren im Landhausstil sorgen für ein natürliches Wohnklima
- Gäste-WC
- Vollbad mit Dusche und Badewanne sowie zwei Waschtische
- Carport mit Schuppen
- Holztreppe
- Abstellräume unter der Treppe bzw. im Obergeschoss
- Terrasse (Süd/West mit Blick auf das Regenrückhaltebecken)
- Rollrasen
- Glasfaserkabel
- Satelliten-Anlage
- LED-Beleuchtung
- DV-Verkabelung an allen Zimmern
- Fußbodenheizung im gesamten Haus, welche für eine angenehme Wärme sorgt
- Hochwertige Einbauküche mit E-Geräten
- Moderne Fliesen im Bad und Flur. Hochwertiger Laminat in den Wohn- und Schlafräumen.
- Die Wände sind verputzt und weiß gestrichen.
Lage
Das Neubaugebiet „Groß-Tarup“ liegt im Südosten der Stadt Flensburg, östlich der Bahnstrecke Kiel-Flensburg und angrenzend an die Ortsteile Tarup und Sünderup. Obwohl das Neubaugebiet am Rande der Stadt entsteht, besteht eine sehr gute und kurze verkehrliche Anbindung an die Innenstadt wie auch an die überörtliche Verbindungsstraße B199 sowie BAB A7. Im Ortsteil befindet sich eine Grundschule sowie eine Gemeinschaftsschule mit gymnasialer Oberstufe und mehrere Kindertageseinrichtungen.
Das zentrale Einkaufszentrum Fördepark ist in ca. 5 Minuten mit dem Auto erreichbar.
Sonstiges
Die Heiz- und Betriebskosten werden direkt mit den Versorgern abgerechnet (Stadtwerke / TBZ). Die Grundsteuer und Gebäudeversicherung wird ein mal pro Jahr gesondert abgerechnet.
Alle Angaben erhalten wir vom Eigentümer bzw. Auskunftsbefugten und übernehmen daher keine Haftung.
Haben Sie bitte Verständnis dafür, dass wir Anfragen ohne vollständige Kontaktdaten (Anschrift, Tel. Nr.) nicht bearbeiten können.
Bitte wahren Sie Diskretion und sehen Sie von Besichtigungen ohne Begleitung eines Mitarbeiters von uns ab.
| Kaution: | 2 Kaltmieten |
| Zimmer: | 5 |
| Schlafzimmer: | 2 |
| Wohnfläche: | 130 m² |
| Grundstücksfläche: | ca. 250 m² |
| Etagen: | 3 |
| Objektzustand: | Neubau |
| Verfügbar ab: | Nach Vereinbarung |
| Heizungsart: | Fußboden |
| Befeuerungsart: | Fernwärme |





















